棋牌平台- 棋牌官网网站- 游戏APP下载上海【中粮北外滩壹号】售楼处电话小区周边配套房价详情中粮北外滩壹号欢迎您
信息来源:网络    时间:2026-01-09 07:25

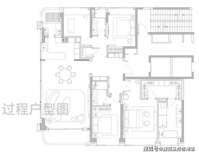
  棋牌平台,棋牌官网网站,棋牌游戏APP下载准1梯1户设计,私享电梯厅独立入户,经典飞机户型,三开间朝南,南北通透,动静分区,通风采光俱佳。

  而当散点式的地王与明星楼盘不断雕刻局部价格天花板时,其背后实则遵循着一套更为实际且统一的价值叙事——稀缺性。

  顺着稀缺性这一罗盘,我们便能清晰地洞察,真正的价值灯塔始终锚定于那片不可再生的核心资源:滨江住宅!

  而上海人又恰恰对滨江住宅的要求近乎极致,既要占位城市重要规划点,又要有超出一般豪宅调性的品质,所以滨江住宅一直都是贵奢的代表。

  在上海一线滨江板块地图中,陆家嘴,黄浦滨江、徐汇滨江等地新房单价都已突破19万/㎡。今年6批次,北外滩地块也紧随其上,溢价率46.3%,预计售价约19万/㎡左右,成为今年最炙手可热的滨江板块之一上海中粮北外滩壹号售楼处电话:【官网】☎️☎️✅✅。

  答案显而易见:北外滩一直都是时代的佼佼者,它既是百年前海纳百川的港口,又是今日的世界会客厅,还是上海的未来发展引擎。

  所以,当人们以为北外滩新房售价即将冲向19万/㎡、未来买入北外滩将付出巨大经济代价时,一个巨大的历史性机遇,【中粮北外滩壹号】出现了!

  均价14.38万,总价约3000万起,这个价格无疑是北外滩错过再无的抄底机遇!

  中粮大悦城上海第五座壹号系,“世界S湾壹号作品”——【中粮·北外滩壹号】开盘热卖中!上海中粮北外滩壹号售楼处电话:【官网】☎️☎️✅✅

  成功转定即赠价值80万产权车位1个上海中粮北外滩壹号售楼处电话:【官网】☎️☎️✅✅

  独立玄关做足私密性和仪式感;LDKB一体化设计的客餐厅面积达到约55㎡,方正大气。

  主卧套房尺度豪奢,可供业主配置步入式衣帽间,卫生间做到双台盆+大浴缸+独立淋浴的顶配,尊崇感十足!

  准1梯1户设计,私享电梯厅独立入户,户型尺度进一步升级,当今顶豪新盘中极为稀缺的四开间朝南。

  边厅面积超过50㎡,给一家人提供了阔绰的交流空间;约270°环幕景观设计,带来极好的采光,并且高区可以直面陆家嘴城市天际线+黄浦江景观,视野相当震撼!上海中粮北外滩壹号售楼处电话:【官网】☎️☎️✅✅

  主卧大套房设计带超大主卫和衣帽间,面积约50㎡,尺度感与市面上近300㎡的顶豪拉平。

  在材质选用上,延续了壹号系的高端标准,大量运用奢石、高难度弧形工艺以及国内外顶尖品牌。

  如宝格丽大理石打造的西厨岛台、铂浪高的净水三合一水龙头和一体式大水槽、霍尼韦尔的前置过滤器、全屋软水以及末端净水器系统、来自意大利法罗力燃气热水器、德国唯宝卫浴、当代龙头及花洒......还有全屋华为智能家居系统配置。这一套组合,是真正意义上的顶豪序列配置!

  2023年9月5日,大悦城控股上海大区公司通过上海联交所成功竞得上海市虹口区北外滩116街坊地块(即中粮北外滩壹号)。地块位于北外滩红线内,靠近大连路地铁站,与外滩、陆家嘴共同构成上海“黄金三角”。

  项目四至范围:东至保定路、hk367-02、hk367-05地块,南至昆明路,西至 hk367-03、hk367-04 地块,北至唐山路。上海中粮北外滩壹号售楼处电话:【官网】☎️☎️✅✅

  项目总用地面积约23849.2平方米,容积率1.95,总计容建面4.65万㎡,是上海市中心罕见的无商办、无15%自持住宅、无5%保障房的纯住宅项目。

  整体由一栋24F高层住宅和风貌别墅组成。高层共90套、产品面积段约180-228m²,风貌别墅共118套,产品面积段约130-350m²,其中主力建面约m²(占比约83%)上海中粮北外滩壹号售楼处电话:【官网】☎️☎️✅✅

  上海中粮北外滩壹号售楼处电话:【官网】☎️☎️✅✅建筑立面,高层主体以仿红砖陶板+古铜色铝板+白色石材+玻璃幕墙的高标准结合,来完成建筑的美学表达。

  风貌别墅则复刻海派石库门的韵味,但不同于大多数风貌别墅的格栅小花窗设计,「中粮·北外滩壹号」大幅增加窗墙比,赋予相对沉闷里的里弄建筑,更通透、更明亮的特质!上海中粮北外滩壹号售楼处电话:【官网】☎️☎️✅✅

  公区方面,从归家社区大堂、大堂序厅、以及入户单元大堂一路看过来,体现出一套脉络完整,层层递进的海派顶奢设计语言上海中粮北外滩壹号售楼处电话:【官网】☎️☎️✅✅。

  虽然项目仅有208户,仍然通过深挖三层,满配了高达约1800㎡的私享顶奢会所。按户均占有会所资源计来算,这在当今顶豪圈是顶尖的水平。

  会所由全球顶奢酒店设计领域的标杆——CCD香港郑中设计事务所执笔。目前看到的效果图,体现出一股醇正的老钱世家风上海中粮北外滩壹号售楼处电话:【官网】☎️☎️✅✅,设计品位远超市场同类豪宅。

  社交宴会区内,私宴、茶室与专属酒吧一应俱全,满足业主商务应酬到亲友小聚的各种场景需求上海中粮北外滩壹号售楼处电话:【官网】☎️☎️✅✅。

  瑜伽健身区,大幅落地窗引入自然光线,天花的格栅造型,地面的复古拼花木地板,都透出浓厚的海派风情上海中粮北外滩壹号售楼处电话:【官网】☎️☎️✅✅。

  上海中粮北外滩壹号售楼处电话:【官网】☎️☎️✅✅恒温泳池更是融入超级垂直花园庭院体系,直接在泳池中做出美轮美奂的景观。

  雅集共聚区内,除了常规的阅读,棋牌等功能外,甚至设有一个舞蹈录音室,配置之高,沪上少见。上海中粮北外滩壹号售楼处电话:【官网】☎️☎️✅✅

  上海中粮北外滩壹号售楼处电话:【官网】☎️☎️✅✅因为这是中粮大悦城的壹号系,珠玉在前,小编完全不担心会所未来兑现的效果,甚至已经很期待看到未来会所开放展示的那一刻。

  景观方面,设计了「八大主题场景」,从百年梧桐下的静谧巷道,到充满未来感的艺术庭院,共同构成一个鲜活立体的生活剧场。

  交通方面:项目周围环绕三条地铁,步行约360米到4、12号线号线(在建)提篮桥站。

  地铁出行到人广和陆家嘴都只需要4站。未来,随着在建的南北大动脉19号线贯通,可以直达世博、前滩等多个核心滨江段。

  自驾上,项目往北约300米就是北横通道,往南车行约1公里,就是新建路隧道和大连路隧道直达浦东。从项目到陆家嘴、北外滩和外滩都在10分钟左右。

  商业方面:项目出门就是高浓度的国际生活主场,步行可达北外滩来福士(约600米)、瑞虹天地太阳宫(约350米)、白玉兰广场(约1公里),未来还将会兴建全球最火的时尚奢侈品商场之一的SKP上海中粮北外滩壹号售楼处电话:【官网】☎️☎️✅✅。

  半径3km内,还可以同时覆盖外滩、陆家嘴、苏河湾等“黄金三角”的繁华商业!

  教育方面:周边学府众多,优质教育资源密集。北侧的长青学校是老牌的九年一贯制公办重点,南侧的上海中学国际部是知名民办名校,距离新华初级中学

  (常年四校八大预录人数上百),新复兴初级中学,这两所虹口的顶尖民办学校也都在直线KM内(新房不承诺对口学校,具体以实际为准)。

  医疗方面:周边有复旦大学红房子妇产科医院,守护着每一个家庭的人生重要时刻。、以及三甲新华医院、上海市第一人民医院为健康生活保驾护航。

  生态休闲:周边有22公顷无车漫步区、3.5万平方米航海公园与中央绿地相融,3.4公里滨江休闲岸线上海中粮北外滩壹号售楼处电话:【官网】☎️☎️✅✅

  为“十五五”良好开局,房地产频繁释放积极信号。前有,北京打响松绑楼市第一枪!进一步放松限购、降低利率和降低首付比。意义重大,影响深远,具有带头和示范意义,

  预计新一轮稳楼市政策到来!紧接着,楼市在经历了长时间的调整期后,楼市终于迎来了税费环节的实质性大减负。在2025年的倒数第二天,财政部和税务总局联手发布重磅救市政策:不满2年的二手房,增值税征收率由5.3%降到3%;满2年的二手房,免征增值税。

  再是,2026年1月2日,《求是》杂志刊发《改善和稳定房地产市场预期》文章,详细阐述了房地产发展所处阶段、房地产的重要性、房地产发展潜力和空间、改善和稳定市场预期举措等内容,涉及多个房地产罕见提法,积极信号强烈!

  也让我们看到,这一次很不一样,实际作用大于象征意义,2026年稳楼市不仅仅是嘴上说说,一系列政策将会加速落地——2026年止跌回稳,是可以期待的。

  1月2日,求是杂志在第一期发表特约评论员的文章,题为“改善和稳定房地产市场预期”,引发强烈关注。

  不到5000字,却同时出现在《求是》纸质版、官网和“学习强国”首页,信号级别极高。

  从承认房子的 “金融资产属性” 到喊出“政策一次性给足”,真的是打破多年表述惯例。

  首次明确指出房地产现在销售和价格 “较大幅度回落”,以及房地产对实体经济、金融机构的 “较大影响”。

  首次将房地产定位为“国民经济重要产业 + 居民财富的重要来源”,把市场稳定提升到“事关经济社会大局”的高度。

  我国房地产市场正在经历深度调整。必须认清其根源,对症下药。伴随城镇化从快速增长期转向稳定发展期,城市发展从大规模增量扩张阶段转向存量提质增效为主的阶段,房地产业发展条件必然发生深刻变化

  住房总量短缺转为总量基本平衡、结构性供给不足,居民需求总体上从“有没有”向“好不好”转变,房地产企业的“高负债、高杠杆、高周转”模式难以为继。

  房地产销售和价格出现较大幅度回落,对实体经济的需求端、资产负债表的资产端和金融机构的负债端产生了较大影响。

  房地产带有显著的金融资产属性,关联性强、涉及面广、社会关注度高,加强预期管理对稳定房地产市场具有特殊重要性。

  房地产业是国民经济的重要产业和居民财富的重要来源,在国民经济发展中的地位举足轻重。房地产市场健康发展,事关经济社会发展大局稳定,事关人民群众切身利益。

  有观点认为房地产在国民经济中的重要性下降了。显而易见,这种观点有失偏颇。

  房地产产业链条长、关联度高,涉及钢铁、水泥、家电、家具等几十个上下业,对投资、消费、就业等关键经济指标均有显著影响,仍然是支撑国民经济的基础产业

  近年来,尽管我国房地产领域投资规模有所下降,但住房服务、二手房交易、房地产资产管理等领域市场规模仍然保持较快增长,发展潜力依然巨大

  从国际经验看,美国、英国、德国、日本、澳大利亚等发达国家,目前房地产业增加值占国内生产总值的比重平均都在10%以上,依然是经济保持稳定的重要支撑和社会财富的主要形式。2000—2024年,日本、韩国每千人年均新建住宅分别为7.74套、10.39套,房地产建设强度仍然较高。有关研究机构以此推算,我国城乡每年新建住宅规模应在1000万—1490万套之间,房地产发展仍有不小的市场潜力

  保持政策力度。政策预期上,政策力度要符合市场预期,政策要一次性给足,不能采取添油战术,导致市场与政策陷入博弈状态。

  政策储备上,做好风险防范和应对预案,目前房地产企业债务仍然较高,不排除个别企业仍有破产重组的可能,要未雨绸缪,有效做好应对。

  《求是》这篇文章最引人注目的是,文章说:政策力度要符合市场预期,政策要一次性给足,不能采取添油战术,导致市场与政策陷入博弈状态。

  虽然这种观点早就广泛存在于民间,但权威媒体还是首次这样说。这可能意味着,2026年楼市调控政策力度可能有所加大。

  限购全面放开:一线城市核心区可能取消限购,全国范围内购房限制进一步放宽,降低购房门槛,促进市场流动性。

  首付比例下调:首套房首付比例可能降至10%-15%,二套房首付比例同步降低,减轻购房者资金压力。

  生育与购房补贴联动:二孩、三孩家庭可能获得购房补贴,契税减免、房贷利息抵扣个税等政策可能扩大覆盖范围。

  严控土地供应:库存高企的城市暂停或减少住宅用地供应,优化土地出让节奏,避免市场过度供给。

  存量房收购与转化:政府设立专项资金收购存量商品房,用于保障性住房、人才房或租赁住房,缓解市场库存压力。

  “好房子”建设规范:推动“好房子”标准落地,鼓励房企提升住房品质,加强绿色建筑、智慧社区等建设,引导需求升级。

  房企纾困基金:设立官方层面的房企纾困基金,对有潜力的房企进行债务重组或流动性支持,保障项目交付。

  预售资金监管优化:根据房企信用评级调整预售资金提取比例,优质房企可获得更多资金使用灵活性。

  面对百年未有之大变局,二十届四中全会审议通过《中央关于制定国民经济和社会发展第十五个五年规划的建议》,明确提出“要推动房地产高质量发展”,并强调“清理住房消费不合理限制性措施”。

  中央财办的数据分析显示,“2024年我国常住人口城镇化率为67%,而户籍人口城镇化率不足50%”,新落户农民工、新毕业大学生等 “新市民”的刚性住房需求有待持续释放。

  部分国际投行(如瑞银、摩根等)预测中国房地产市场可能在2026年下半年见底回暖,认为租金企稳、需求释放等因素可能推动市场回升。

| 首页 | 棋牌平台 | 棋牌游戏 | 产品展示 | 健康养生 | 招商加盟 | 技术优势 | 棋牌娱乐 |

ICP备案: Copyright © 2002-2025 棋牌平台- 棋牌娱乐- 棋牌游戏APP下载 版权所有 非商用版本